公路上常用米兰体育全站一般构造图
发布时间:2022-02-04 06:38:54作者:ac米兰app安卓版

B级米兰体育全站一般构造图(尺寸单位:mm)

1级米兰体育全站一般构造图(尺寸单位:mm)

SB级米兰体育全站一般构造图(尺寸单位:mm)

S1级米兰体育全站一般构造图(尺寸单位:mm)

SS级米兰体育全站一般构造图(尺寸单位:mm)

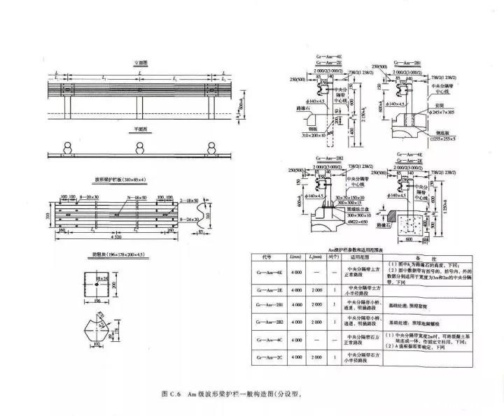
Am级米兰体育全站一般构造图(分设型,尺寸单位:mm)

SBm级米兰体育全站一般构造图(尺寸单位:mm)

SAm级米兰体育全站一般构造图(尺寸单位:mm)

